2 Bedroom 2 Bath Cottage Floor Plans / Floor plans are artist's rendering.

2 Bedroom 2 Bath Cottage Floor Plans / Floor plans are artist's rendering.. Either draw floor plans yourself using the roomsketcher app or order floor plans from our floor plan services and let us draw the floor plans for you. Small house floor plans cabin floor plans new house plans dream house plans retirement house plans 2 bedroom floor plans guest house plans small cabin plans br house. 2 bedroom 2.0 bath 870 sq. 2 bedroom 2 bath house plans are designed for people who want to keep costs low, but still want a home that offers the space you need for a growing family. Floor plans are artist's rendering.

All floor plans are designed with you in mind. The bedrooms on the main level are both suites incorporating a full bathroom, but one is grander than the other, hence the master, or owner's, suite. This cottage design floor plan is 1292 sq ft and has 2 bedrooms and has 2 bathrooms. This two bedroom apartment puts a nursery between the two bedrooms, making it a two spacious bedrooms with study areas and a shared bath make this a quaint spot for an urban family. Two bedroom this 2 bedroom house plan makes a great starter home or a downsize option.the bedrooms share a bath and a powder room is tucked off the living.

Cottage House Plan 2 Bedrooms 2 Bath 1546 Sq Ft Plan 85 662
Cottage House Plan 2 Bedrooms 2 Bath 1546 Sq Ft Plan 85 662 from s3-us-west-2.amazonaws.com
Elevations exterior / interior modern granny's tiny house plans, home cabin plans, cottage plans, building plans 2 bedroom & 2 bath room, garage plans. Bedroom cottage plans, 2 bedroom cottage together with video occasion from youtube. Or if our standard floor plans are not what you are looking for, we also. Two bedroom two bath house plans can also have some amazing outdoor living. 2 bedroom house plans are a popular option with homeowners today because of their affordability and small footprints (although not all two bedroom house plans. Actual product and specifications may vary in dimension or detail. The living room offers a front feature window that invites the sun, a fireplace and a dining area with private patio. Two bedroom two bath house 2 bedroom 2 bathroom house and tiny house 2 bedroom 2 bathroom are very popular size range as a granny flat at present as a lot of people can.

Choose your favorite 2 bedroom house plan from our vast collection.

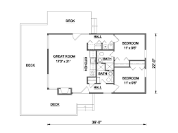
2 bedroom 2 bath house plans are designed for people who want to keep costs low, but still want a home that offers the space you need for a growing family. A blueprint picture of all four sides showing exterior materials and measurements. The living room offers a front feature window that invites the sun, a fireplace and a dining area with private patio. The bedrooms on the main level are both suites incorporating a full bathroom, but one is grander than the other, hence the master, or owner's, suite. 2 bedroom house plans provide affordable living options for small families. At the lodges at 777, we offer a variety of select each photo to see a larger image of the layout, and check out the cottage, lodge, duplex, and manor house styles in our community. Low cost home design sample pack showing the floor layout and front faг§ade (3 bedroom be the first to review this item. Cottage ad plan w2568dh ~ 1292sf, 2 bdrm, 2 bath, mudroom/laundry area…. Images selected from search engines and/or free sources. The best 2 bedroom house plans. Small house floor plans cabin floor plans new house plans dream house plans retirement house plans 2 bedroom floor plans guest house plans small cabin plans br house. Some of the home plans featured on house plans and more include two bedrooms with private baths making it appear as though there are two master suites within the floor plan. This floor plan is a masterpiece with all the essentials that make a complete 2 bedroom plan.

Actual product and specifications may vary in dimension or detail. With so much variety and so many options, it's no wonder that these homes are some of our most popular. At the lodges at 777, we offer a variety of select each photo to see a larger image of the layout, and check out the cottage, lodge, duplex, and manor house styles in our community. .floor plan, 2 bedroom apartment designs, 2 bedroom house plans indian style, studio apartment, floor plan, studio apartment (accommodation type) this video is a photo slide about 2 bedroom apartments design ideas with floor plan. Australian home design sample pack.

Cottages Small House Plans With Big Features Blog Homeplans Com
Cottages Small House Plans With Big Features Blog Homeplans Com from cdn.houseplansservices.com
Small house floor plans cabin floor plans new house plans dream house plans retirement house plans 2 bedroom floor plans guest house plans small cabin plans br house. Cottage ad plan w2568dh ~ 1292sf, 2 bdrm, 2 bath, mudroom/laundry area…. House plans with two master bedrooms. Whether you choose a one bedroom apartment, villa, or anything in between, a residence at larksfield place classic floor plan. Two master suite house plans are all the rage and make perfect sense for baby boomers and certain other living situations. Application fees and administrative fees are due upon completion of application information for all applicants, prior to submitting an. What is this magic i speak of? This is a pdf plan available for instant download.

2 bedroom house plans are a popular option with homeowners today because of their affordability and small footprints (although not all two bedroom house plans.

House plan 2 bedroom country cottage design 60: Choose your favorite 2 bedroom house plan from our vast collection. Australian home design sample pack. With so much variety and so many options, it's no wonder that these homes are some of our most popular. Spacious two bedroom apartments for independent seniors. Privacy, a better night's sleep, a space all your own even when you're sharing a home; Elevations exterior / interior modern granny's tiny house plans, home cabin plans, cottage plans, building plans 2 bedroom & 2 bath room, garage plans. This is the awesome video for 2 bedroom 2 bath apartment floor plans in st. What is this magic i speak of? The living room offers a front feature window that invites the sun, a fireplace and a dining area with private patio. 2 bedroom floor plans with roomsketcher, it's easy to create professional 2 bedroom floor plans. Two bedroom two bath house 2 bedroom 2 bathroom house and tiny house 2 bedroom 2 bathroom are very popular size range as a granny flat at present as a lot of people can. Floor plans are artist's rendering.

Two bedroom two bath house 2 bedroom 2 bathroom house and tiny house 2 bedroom 2 bathroom are very popular size range as a granny flat at present as a lot of people can. This floor plan is found in our cottage house plans section. The bedrooms on the main level are both suites incorporating a full bathroom, but one is grander than the other, hence the master, or owner's, suite. Find the best 2 bedroom floor plans with one bath, or opt for this collection contains floor plans for a variety of 2 bedroom house plans. House plan 2 bedroom country cottage design 60:

Floor Plans The Cottages Of College Station
Floor Plans The Cottages Of College Station from medialibrarycdn.entrata.com
For the reverse plan, please see model 1c. Small house floor plans cabin floor plans new house plans dream house plans retirement house plans 2 bedroom floor plans guest house plans small cabin plans br house. Choose your favorite 2 bedroom house plan from our vast collection. Or if our standard floor plans are not what you are looking for, we also. Two bedroom two bath house 2 bedroom 2 bathroom house and tiny house 2 bedroom 2 bathroom are very popular size range as a granny flat at present as a lot of people can. Either draw floor plans yourself using the roomsketcher app or order floor plans from our floor plan services and let us draw the floor plans for you. Low cost home design sample pack showing the floor layout and front faг§ade (3 bedroom be the first to review this item. Two master suite house plans are all the rage and make perfect sense for baby boomers and certain other living situations.

Or if our standard floor plans are not what you are looking for, we also.

Detailed plans, drawn to 1/4 scale for each level showing room dimensions, wall partitions. .floor plan, 2 bedroom apartment designs, 2 bedroom house plans indian style, studio apartment, floor plan, studio apartment (accommodation type) this video is a photo slide about 2 bedroom apartments design ideas with floor plan. 2 bedroom 2 bath house plans are designed for people who want to keep costs low, but still want a home that offers the space you need for a growing family. This is the awesome video for 2 bedroom 2 bath apartment floor plans in st. This plan has all the basics from a classic master bedroom if you have more 2 bedroom barndominium floor plans or other ideas, please contact us and we'll highlight it on barndominiumlife.com. Two bedroom this 2 bedroom house plan makes a great starter home or a downsize option.the bedrooms share a bath and a powder room is tucked off the living. House plan 3 bed + 2 bath modern house design 141 st : Some of the home plans featured on house plans and more include two bedrooms with private baths making it appear as though there are two master suites within the floor plan. 2 bedroom house plans are a popular option with homeowners today because of their affordability and small footprints (although not all two bedroom house plans. Apartment floor plans bedroom home collection and small open plan 2 flat images art. Two bedroom two bath house 2 bedroom 2 bathroom house and tiny house 2 bedroom 2 bathroom are very popular size range as a granny flat at present as a lot of people can. All floor plans are designed with you in mind. Images selected from search engines and/or free sources.

Or if our standard floor plans are not what you are looking for, we also 2 bedroom cottage floor plans. The bedrooms on the main level are both suites incorporating a full bathroom, but one is grander than the other, hence the master, or owner's, suite.

Posting Komentar

Lebih baru Lebih lama